Projects
42 Combedale Road, SE10 0LG
This property was in need of extensive refurbishment and was thoroughly and creatively rebuilt by developers whose commitment to quality and attention to detail can be clearly seen in the final photographs.
The Property:
The Plans:
The Dream Home:
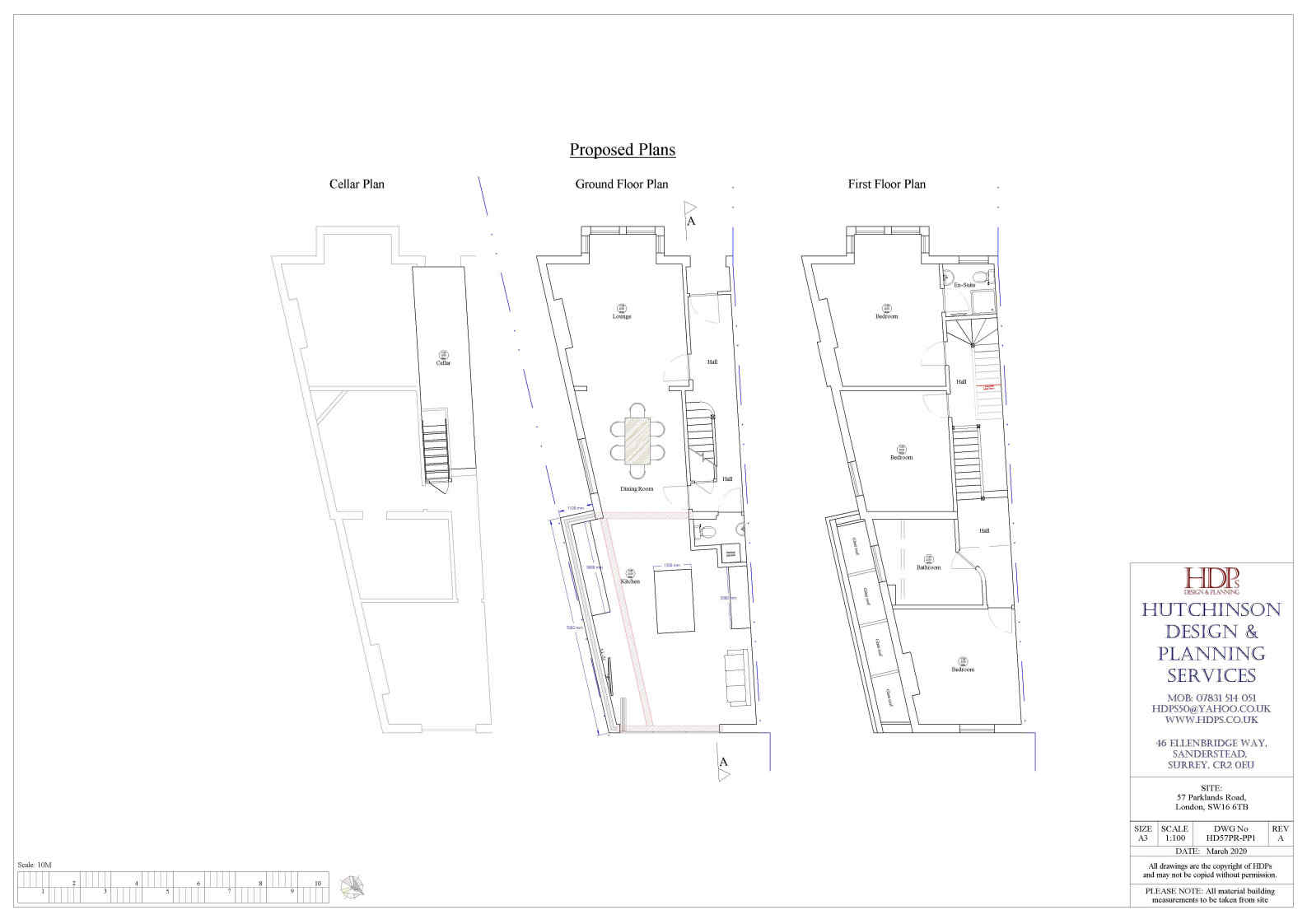
57 Parkside Road, SE10 0LG
This was another property in need of extensive refurbishment. The thought processes behind correctly selecting the right options for this can be clearly see throughout the house which was thoroughly, creatively and sympathetically rebuilt. The quality of the works undertakencan be clearly seen in the final photographs.
The Property:
The Plans:
The Dream Home:
5 Wearside Road, SE13 7UN
This was a property in a prominent corner position dominating the street scene of Ladywell and needed careful consideration during the design process. The internal elements were completely redesigned with the staircases and entrance doors relocated providing the elements for the new impressive floor layouts. The external elevations were skilfully brought back to their original grandeur with the windows, doors and roofing details being entirely sympathetic to the neighbouring houses. The developers input for selecting the right options for this house can be enjoyed throughout the property. The quality of the works undertaken can be clearly seen in the final photographs.
The Property:
The Plans:
The Dream Home:
Coulsdon:
Blindley Heath:
HDPs - 46 Ellenbridge Way, Sanderstead, Surrey, CR2 0EU
Mobile: 07831 514 051 Email: hdps50@yahoo.co.uk
